• 可租户型
    137 - 1576
  • 租金价格
    3~5元/天/㎡
  • 物业费
    18元/天/㎡
  • 物业等级:甲级写字楼
  • 车位配套:300个,800元/月
  • 得房率:72%
  • 基本租期:1~3年
  • 免 租 期:30~60天
  • 交房标准:按现状交付
  • 楼层数:26层
  • 标准层高:3.2米
  • 办公面积:71709平米
  • 北京宝能中心外观

    北京宝能中心外观
  • 北京宝能中心大堂

    北京宝能中心大堂

北京宝能中心写字楼租赁

210
5 元/天/m²
28~56个/工位
325
5 元/天/m²
36~71个/工位
478
4 元/天/m²
60~120个/工位
580
4 元/天/m²
63~126个/工位
698
4 元/天/m²
65~210个/工位
1920
3.5 元/天/m²
257~513个/工位
租赁电话010-89543774

扫描二维码,用手机查看

北京宝能中心怎么样

    北京宝能中心是干什么的

    北京宝能中心总建筑面积为71709.45平方米,其中写字楼面积为31497.42平方米。100—1500平方米写字间灵活组合,国际甲级写字楼,企业办公首选商务平台。地段资源位于广顺南大街与阜通东大街的交汇处,地处世界500强中国总部基地、北京经济版图又一重量增长极、首都副都——望京商圈东南出入口,望京商圈核心腹地,增值空间巨大。

    北京宝能中心A座

    采用LOW-E中空玻璃式幕墙,风行国际“素”派风格,极具现代化其质感——简约而不简单,建筑魅力应运而生。望京商圈核心地段唯一由开发商直接出租、且有大面积出租的国际甲级写字楼,保证了写字楼品质的恒久性。宝能中心写字楼标准层高4.2米,冠绝望京商圈。客户独享首席层高资源,映衬出企业的伟岸气度与实力底蕴。

    北京宝能中心物业管理

    北京华丰世纪置业有限公司,北京宝能中心拥有1.6公顷的生态绿地面积,绿地率达到62%,引领北京写字楼市场生态办公、有氧办公的国际化潮流。宝能中心畅享望京完善、便捷的交通体系,20分钟直达首都机场,沿机场高速直达二、三四环通达各大商圈,成就效率商务;采用进口三菱电梯,高效、有序的应对人流高峰,效率制胜。

    北京宝能中心属于什么街道

    规划中的北京地铁14号线阜通东站与宝能中心零距离、无缝对接,让您的出行省时、省钱而又省心。宝能中心拥有高端酒店式公寓和国际甲级写字楼,两者相得益彰、相互增值,满足商务人士办公、居住需求。

    楼盘参数

    物业公司:宝能物业

    开发商:北京华丰世纪置业有限公司

    地址:朝阳区阜通东大街12号楼

    物业费:18元/月/平米

    楼层数:26层

    车位租金:800元/月/位

    车位数量:300个

    电梯品牌:三菱

    电梯数量:5部

    网络配置:电信、联通

    建筑年代:2010年

    标准层高:3.2米

    建筑面积:71709.45平方米

    空调类型:中央空调

    周边配套

    酒店:北京方恒中心假日酒店、和颐酒店、北京望京智选假日酒店

    商场:望京凯德mall、方恒购物中心、合生麒麟新天地、新荟城

    银行:北京农商银行、建设银行、招商银行、平安银行、中信银行

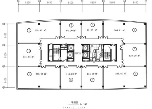
北京宝能中心平面图

  • 户型图

    【平面户型图片】

北京宝能中心有什么公司

雀巢中国、北京智达腾辉智能科技有限公司、北京爱创科技股份有限公司、中石化中原石油工程设计有限公司、互惠生懒洋洋教育咨询、北京美能环保科技有限公司、垦丰科沃施种业有限公司、诚济制药、安锐盟企业服务有限公司、北京芯首电子科技有限公司、天正和顺公司、逸创云客服、柔持科技有限公司、京裕华通科技有限公司、中交四公局第九工程有限公司、牛投邦科技咨询公司、中国石油燃料油公司、北京迪信通通信服务有限公司、启辕汽车信息技术有限公司、北京易数科技有限公司、睿智动力、安居机构、北京灵指互动广告有限公司、中交四公局山水有限公司等已全面入驻北京宝能中心。

北京宝能中心怎么走

地铁:距离 14号线望京南465米、15号线望京1352米;


公交: 附近有404路、536路、696路、854路、921路等多条公交线路汇聚于此,便捷的交通是公司办公场地无可替代的优势条件;

北京宝能中心在哪里

北京宝能中心租赁中心
物业电话 010-89543774
✉ office_leasing@163.com & Copyright 租赁部
招租电话